WORKS施工実績
公開日:2026年01月15日

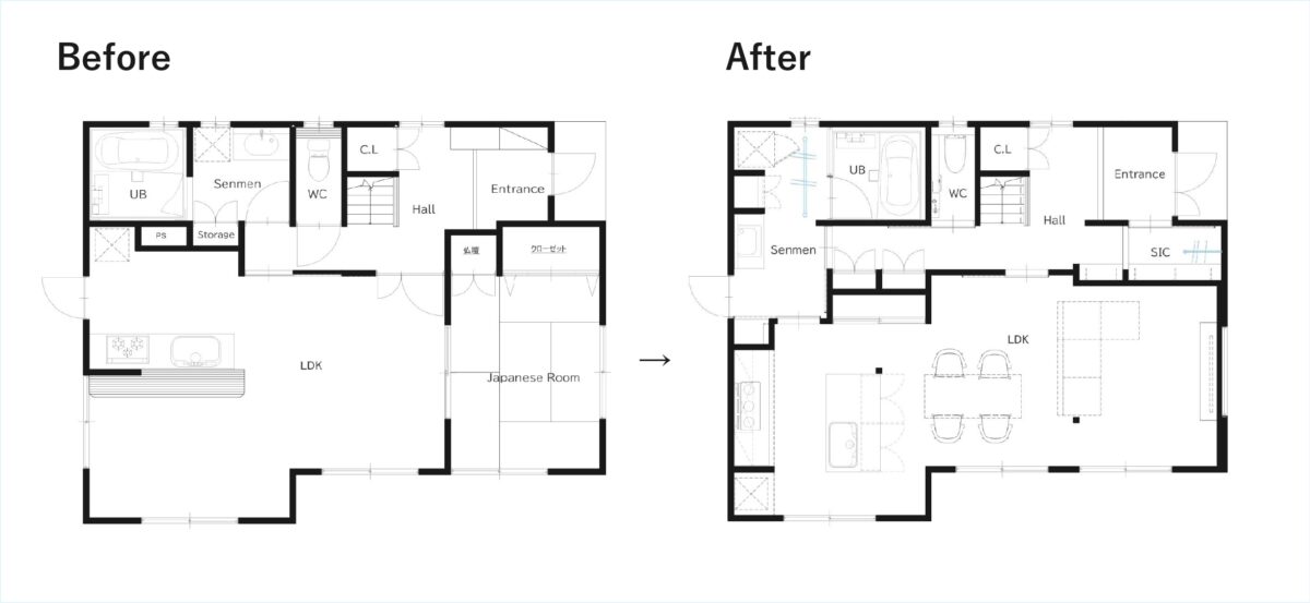
抜けない柱を“魅せる”デザインに
今回ご紹介するのは、在来木造の戸建住宅における 1階・2階全面改装の施工事例です。 和室を洋室へ。LDKをひとつながりの空間に 1階は、もともと和室とリビングが分かれた間取りでしたが、 「和室を洋室に変更し、LDKを一体感のある空間にしたい」 というご要望をいただきました。
| 地域 | 神戸市西区 |
|---|---|
| 完成年月 | 2025年7月 |
| カテゴリ | |
| タグ |

LDKをひとつながりの空間に
1階は、もともと和室とリビングが分かれた間取りでしたが、
「和室を洋室に変更し、LDKを一体感のある空間にしたい」
というご要望をいただきました。
間仕切りを見直すことで、家族が自然と集まる、
広がりを感じられるLDKへと生まれ変わっています。
抜けない柱を“魅せる”デザインに
リビングには、構造上どうしても抜くことができない柱がありました。
そこでこの柱を、天然木突板で化粧し、
オイルステン塗装で墨色に着色。
あえて存在感を持たせることで、空間のアクセントとして活かしています。
-
柱や筋交は残しながらも、
リビング・ダイニング・キッチンに視線と動きのつながりが生まれ、
開放感のある空間となりました。 -
横並びのトリプルIHコンロを採用し、
3つのコンロを同時に“主役”として使える、
作業効率の高いキッチンになっています。
ユニットバスは、TOTO製シンラ
-
タイルのような表情のフローリング
床材には、最近弊社でご提案することの多い
永大産業製「コンカーボ」を採用しました。 -
WORKS最新の施工実績一覧
-
+
マンション|神戸市中央区|2026年3月
1LDKを広々と機能美を纏った空間へ
-
+
マンション|神戸市中央区|2026年3月
上質な造作洗面が叶えるラグジュアリーな洗面空間
-
+
戸建て|西宮市|2025年12月
ダイナミックな空間を住まいへ 鉄骨造リノベーション
-
+
戸建て|神戸市西区|2025年7月
抜けない柱を“魅せる”デザインに
-
+
店舗・オフィス|明石市|2025年11月
コンセプトは「入れないパン屋さん」
-
+
戸建て|神戸市北区|2025年7月
光と素材で魅せる、開放的で上質なリビング空間
-
+
戸建て|神戸市須磨区|2023年9月
限られた空間を無駄なく活かす、水まわりとキッチンの工夫
-
+
戸建て|神戸市須磨区|2025年6月
遊び心と機能性を兼ね備えた、家族5人がつながる2階空間
-
+
マンション|神戸市北区|2024年5月
黒で楽しむ大人な空間
-
+
マンション|神戸市垂水区|2025年3月
こだわりのアーチが迎えるキッチン空間
-
+
マンション|神戸市須磨区|2024年10月
Tender Industrial
-
+
マンション|神戸市須磨区|2024年11月
オリジナル家具とタイルと回遊動線




